
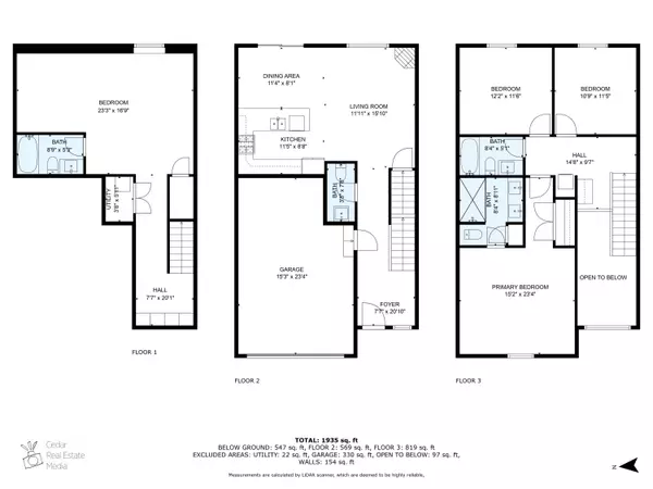
4 Beds
3.5 Baths
2,080 SqFt
4 Beds
3.5 Baths
2,080 SqFt
Key Details
Property Type Townhouse
Sub Type Townhouse
Listing Status Active
Purchase Type For Sale
Square Footage 2,080 sqft
Price per Sqft $330
MLS Listing ID 25-264726
Bedrooms 4
Full Baths 3
HOA Fees $236/mo
HOA Y/N Yes
Abv Grd Liv Area 640
Year Built 2019
Annual Tax Amount $3,526
Tax Year 2022
Lot Size 871 Sqft
Acres 0.02
Property Sub-Type Townhouse
Source Washington County Board of REALTORS®
Land Area 2080
Property Description
Location
State UT
County Iron
Area Outside Area
Zoning Residential, PUD
Direction From I-15, take Exit 75 for UT-143 toward Parowan. Head east on Hwy 143/200 S. Take a slight right to continue on Hwy 143/Canyon Rd. Follow for 11 miles; turn left onto Crooked River. Unit 6 is on the right.
Rooms
Basement Full
Master Bedroom 2nd Floor
Dining Room No
Interior
Heating Natural Gas
Cooling Central Air
Inclusions Window, Double Pane, Window Coverings, Washer, Walk-in Closet(s), Refrigerator, Patio, Uncovered, Oven/Range, Freestnd, Microwave, Dryer, Disposal, Dishwasher, Ceiling Fan(s)
Fireplace Yes
Exterior
Parking Features Attached, Extra Depth, Extra Width, Garage Door Opener
Garage Spaces 2.0
Utilities Available Sewer Available, Culinary, City, Electricity Connected, Natural Gas Connected
View Y/N Yes
View Mountain(s), Valley
Roof Type Asphalt
Street Surface Paved
Building
Story 2
Water Culinary
Structure Type Shingle Siding,Rock
New Construction No
Schools
School District Out Of Area
Others
HOA Fee Include 236.0
Senior Community No
Tax ID A-1204-0022-0000
Acceptable Financing Conventional, Cash, 1031 Exchange
Listing Terms Conventional, Cash, 1031 Exchange
Virtual Tour https://my.matterport.com/show/?m=dejjnej26SV


"My job is to find and attract mastery-based agents to the office, protect the culture, and make sure everyone is happy! "






